李工:138-8949-5179 刘工:135-0428-8802
型号查询
轴承型号   常见搜索: 6205轴承 71913轴承 32313轴承 6012轴承 6022轴承 688a轴承
型号查询 X

轴承专区

Bearings Center

KWSE35-H轴承-INA KWSE35-H轴承尺寸、图纸、价格

INA KWSE35-H轴承

产品名称:KWSE35-H轴承 品牌:INA
类型:INA轴承 > 滑块
描述: KWSE35-H轴承是【INA轴承 > 滑块】的型号,主要用在装卸搬运机械、各类变速器、发电机、铁路车辆、轧钢机齿轮箱座、机床主轴、矿山、烟草机械、混凝土机械、摩天轮等各大领域

 电话/微信:138-8949-5179

INA KWSE35-H轴承详细信息

KWSE35-H轴承是【INA轴承 > 滑块】的型号,主要用在装卸搬运机械、各类变速器、发电机、铁路车辆、轧钢机齿轮箱座、机床主轴、矿山、烟草机械、混凝土机械、摩天轮等各大领域。

INA KWSE35-H轴承详细参数

参数备注
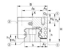
H55 mm
B70 mm
L107,1 mm用于密封润滑孔 N2 的最小覆盖长度
1)定位面
2)标记
A118 mm
A210 mm
A314,2 mm
aL max71 mma L 和 a R 取决于导轨的长度 l max
aL min20 mma L 和 a R 取决于导轨的长度 l max
aR max71 mma L 和 a R 取决于导轨的长度 l max
aR min20 mma L 和 a R 取决于导轨的长度 l max
b34 mm公差: -0,005 / -0,03
G2M8根据 DIN ISO 4762-12.9的螺钉最大锁紧力矩 [MA](Nm):M5 = 10M6 = 17M8 = 41M10 = 83M12 = 140
H16,6 mm
H56,5 mm
h29,7 mm
h117,7 mm
JB50 mm
JL50 mm
JL517,65 mm周围结构上润滑孔的位置。
jL80 mm
K1M8根据 DIN ISO 4762-12.9的螺钉最大锁紧力矩 [MA](Nm):M5 = 10M6 = 17M8 = 41M10 = 83M12 = 140M14 = 220M16 = 340
L177,7 mm
lmax2960 mm单根导轨的最大长度;更长的导轨可以分成几段供货,并且相应地标注。根据合同约定,单根导轨最大长度可达到6米。
N24,5 mm周边结构润滑孔的最大直径。
O4,5x1,5 mmDIN 3771
T514 mm
mW1,3 kg滑块的质量
mS6,5 kg/m导轨的质量
CI55000 N载荷方向 I:压缩载荷
C0 I102000 N载荷方向 I:压缩载荷
CII45000 N载荷方向 II:拉伸载荷
C0 II79000 N载荷方向 II:拉伸载荷
CIII42000 N载荷方向 III:横向载荷
C0 III85000 N载荷方向 III:横向载荷
M0x1454 Nm绕 X 轴的额定静扭矩
M0y1173 Nm绕 Y 轴的额定静扭矩
M0z1069 Nm绕 Z 轴的额定静扭矩

INA KWSE35-H轴承尺寸图纸

李工:138-8949-5179

刘工:135-0428-8802

地址:辽宁省大连经济技术开发区现代城3栋-13-13号

在线客服系统