轴承专区
Bearings Center
BS2B 243127轴承-SKF BS2B 243127轴承尺寸、图纸、价格
SKF BS2B 243127轴承
| 产品名称: | BS2B 243127轴承 | 品牌: | SKF |
|---|---|---|---|
| 类型: | SKF轴承 > 滚动轴承 > 球面滚子轴承 | ||
| 描述: | BS2B 243127轴承是【SKF轴承 > 滚动轴承 > 球面滚子轴承】的型号,主要用在燃汽轮机、印刷机械、提升机、轧钢机辊颈、轧钢机齿轮箱座、制铁制钢机械、电机厂、化纤机械、起重机械、数控设备等各大领域 | ||
电话/微信:138-8949-5179
SKF BS2B 243127轴承详细信息
BS2B 243127轴承是【SKF轴承 > 滚动轴承 > 球面滚子轴承】的型号,主要用在燃汽轮机、印刷机械、提升机、轧钢机辊颈、轧钢机齿轮箱座、制铁制钢机械、电机厂、化纤机械、起重机械、数控设备等各大领域。
SKF BS2B 243127轴承详细参数
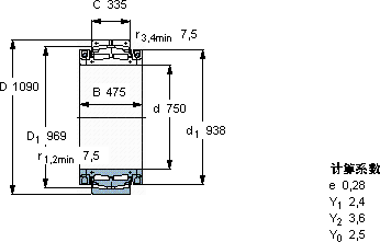
| 球面滚子轴承, 剖分式 | |||||||||
| 主要数据尺寸 | 基本负荷额定值 | 疲劳负荷限值 | 体积 | 型号 | |||||
| 动态 | 静态 | ||||||||
| d | D | B | C | C | C0 | Pu | |||
| mm | kN | kN | kg | - | |||||
| 750 | 1090 | 475 | 335 | 9950 | 24000 | 1400 | 1300 | BS2B 243127 | |
SKF BS2B 243127轴承尺寸图纸

