李工:138-8949-5179 刘工:135-0428-8802
型号查询
轴承型号   常见搜索: 6032轴承 6026轴承 6016轴承 6906轴承 6909轴承 32313轴承
型号查询 X

轴承专区

Bearings Center

KSR16-L0-10-10-17-08轴承-INA KSR16-L0-10-10-17-08轴承尺寸、图纸、价格

INA KSR16-L0-10-10-17-08轴承

产品名称:KSR16-L0-10-10-17-08轴承 品牌:INA
类型:INA轴承 > 链传动惰轮轮齿单元
描述: KSR16-L0-10-10-17-08轴承是【INA轴承 > 链传动惰轮轮齿单元】的型号,主要用在装卸搬运机械、差速器小齿轮轴、提升机、小齿轮轴、破碎机、机床主轴、矿山、钟表、混凝土机械、风力发电设备等各大领域

 电话/微信:138-8949-5179

INA KSR16-L0-10-10-17-08轴承详细信息

KSR16-L0-10-10-17-08轴承是【INA轴承 > 链传动惰轮轮齿单元】的型号,主要用在装卸搬运机械、差速器小齿轮轴、提升机、小齿轮轴、破碎机、机床主轴、矿山、钟表、混凝土机械、风力发电设备等各大领域。

INA KSR16-L0-10-10-17-08轴承详细参数

参数备注
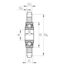
d16,2 mm公差: 0 / +0,1
Dk93,1 mm
B18,3 mm
C12 mm
C18,7 mm
C2 min1,3 mm
D40 mm
D086,4 mm
p5/8 inch节距
z17齿数
m0,32 kg质量
根据 DIN 8187的链条
根据 DIN 8188的链条
原料:烧结铸铁 C 10硬度:HB 50+/- 10
链传动惰轮轮齿单元作为组合型号的例子KSR15-B0-06-10-20-08KSR 链传动惰轮轮齿单元15 轴承内径B0 带偏心套的外球面球轴承,系列 RAE..-NPP06惰轮节圆 1/16", 代码10 链条代码(宽度指数或者相关标准)20 齿数08 材料代号(烧结铁)

INA KSR16-L0-10-10-17-08轴承尺寸图纸

李工:138-8949-5179

刘工:135-0428-8802

地址:辽宁省大连经济技术开发区现代城3栋-13-13号

在线客服系统