轴承专区
Bearings Center
KRE22-PP轴承-INA KRE22-PP轴承尺寸、图纸、价格
INA KRE22-PP轴承
| 产品名称: | KRE22-PP轴承 | 品牌: | INA |
|---|---|---|---|
| 类型: | INA轴承 > 螺栓型滚轮 | ||
| 描述: | KRE22-PP轴承是【INA轴承 > 螺栓型滚轮】的型号,主要用在燃汽轮机、印刷机械、挖土机履带轮、轧钢机辊颈、各类产业用减速机、石油钻机转环、电机厂、音像设备、凿岩机械、数控设备等各大领域 | ||
电话/微信:138-8949-5179
INA KRE22-PP轴承详细信息
KRE22-PP轴承是【INA轴承 > 螺栓型滚轮】的型号,主要用在燃汽轮机、印刷机械、挖土机履带轮、轧钢机辊颈、各类产业用减速机、石油钻机转环、电机厂、音像设备、凿岩机械、数控设备等各大领域。
INA KRE22-PP轴承详细参数
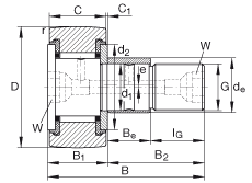
| 参数 | 值 | 备注 |
| D | 22 mm | |
| de | 13 mm | 偏心套公差:h9 |
| B | 36 mm | |
| B1 max | 13,2 mm | |
| B2 | 23 mm | |
| Be | 10 mm | 偏心套 |
| C | 12 mm | |
| C1 | 0,6 mm | |
| d1 | 10 mm | 公差:h7 |
| d2 | 17,5 mm | |
| e | 0,5 mm | 偏心套 |
| G | M10x1 | |
| IG | 12 mm | |
| rmin | 0,3 mm | |
| W | 5 mm | 内六角槽的公称尺寸 |
| m | 47 g | 质量 |
| MA | 15 Nm | 螺母的锁紧力矩 |
| Cr w | 4550 N | 滚轮的有效额定动载荷(径向) |
| C0r w | 5300 N | 滚轮的有效额定静载荷(径向) |
| Cur w | 730 N | 疲劳极限载荷 |
| nD G | 8000 1/min | 转速(脂润滑下连续运转) |
| NIPA1X4,5 | 紧配合润滑嘴轻压配合润滑油嘴松散提供。只能;使用所提供的润滑油嘴。 |
INA KRE22-PP轴承尺寸图纸

