轴承专区
Bearings Center
GE8-FO轴承-INA GE8-FO轴承尺寸、图纸、价格
INA GE8-FO轴承
| 产品名称: | GE8-FO轴承 | 品牌: | INA |
|---|---|---|---|
| 类型: | INA轴承 > 关节轴承 | ||
| 描述: | GE8-FO轴承是【INA轴承 > 关节轴承】的型号,主要用在农业机械、燃料喷射泵、桥式起重机、齿轮减速装置、轧钢机辊道子、石油钻机、钢铁厂、塑料、给料机械、机场加油机等各大领域 | ||
电话/微信:138-8949-5179
INA GE8-FO轴承详细信息
GE8-FO轴承是【INA轴承 > 关节轴承】的型号,主要用在农业机械、燃料喷射泵、桥式起重机、齿轮减速装置、轧钢机辊道子、石油钻机、钢铁厂、塑料、给料机械、机场加油机等各大领域。
INA GE8-FO轴承详细参数
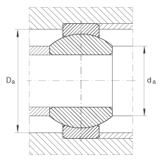
| 参数 | 值 | 备注 |
| d | 8 mm | 公差: 0 / -0,008 |
| D | 19 mm | 公差: 0 / -0,009 |
| B | 11 mm | 公差: 0 / -0,12 |
| 0,032 - 0,068 mm | 径向内部游隙CN也适用于游隙组别 C2 和 C3 | |
| C | 6 mm | 公差: 0 / -0,24 |
| Da min | 15,5 mm | |
| da max | 11,6 mm | |
| dK | 16 mm | 内圈无润滑槽 |
| r1s min | 0,3 mm | 倒角尺寸 |
| r2s min | 0,3 mm | 倒角尺寸 |
| α | 21 ° | |
| 带再润滑结构 | ||
| m | 0,014 kg | 质量 |
| Cr | 8150 N | 基本额定动载荷,径向 |
| C0r | 40500 N | 基本额定静载荷,径向 |
INA GE8-FO轴承尺寸图纸

