李工:138-8949-5179 刘工:135-0428-8802
型号查询
轴承型号   常见搜索: 22222轴承 6012轴承 6030轴承 6022轴承 6003轴承 617轴承
型号查询 X

轴承专区

Bearings Center

BND2284-Z-T-AL-S轴承-FAG BND2284-Z-T-AL-S轴承尺寸、图纸、价格

FAG BND2284-Z-T-AL-S轴承

产品名称:BND2284-Z-T-AL-S轴承 品牌:FAG
类型:FAG轴承 > 直立式轴承座
描述: BND2284-Z-T-AL-S轴承是【FAG轴承 > 直立式轴承座】的型号,主要用在各种产业机械、差速器小齿轮轴、减速装置、小齿轮轴、各类产业用减速机、机床等的变速装置、发电厂、纺织、压路机、雷达等各大领域

 电话/微信:138-8949-5179

FAG BND2284-Z-T-AL-S轴承详细信息

BND2284-Z-T-AL-S轴承是【FAG轴承 > 直立式轴承座】的型号,主要用在各种产业机械、差速器小齿轮轴、减速装置、小齿轮轴、各类产业用减速机、机床等的变速装置、发电厂、纺织、压路机、雷达等各大领域。

FAG BND2284-Z-T-AL-S轴承详细参数

参数备注
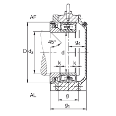
a1500 mm
h1950 mm
g1433 mm
b470 mm
c150 mm
D760 mm
d420 mm
dz450 mm
g238 mm
g4202 mm
h470 mm
k5 mm
m1220 mm
n255 mm
sM64 mm
s2M30 mm
t835 mm
u72 mm
v90 mm
s28数量
22284-MB型号,轴承
m11060 kg质量,轴承座
BND型号,轴承座系列

FAG BND2284-Z-T-AL-S轴承尺寸图纸

李工:138-8949-5179

刘工:135-0428-8802

地址:辽宁省大连经济技术开发区现代城3栋-13-13号

在线客服系统