李工:138-8949-5179 刘工:135-0428-8802
型号查询
轴承型号   常见搜索: 6026轴承 22222轴承 7014轴承 6020轴承 6909轴承 6014轴承
型号查询 X

轴承专区

Bearings Center

NU314-E-TVP2轴承-FAG NU314-E-TVP2轴承尺寸、图纸、价格

FAG NU314-E-TVP2轴承

产品名称:NU314-E-TVP2轴承 品牌:FAG
类型:FAG轴承 > 圆柱滚子轴承
描述: NU314-E-TVP2轴承是【FAG轴承 > 圆柱滚子轴承】的型号,主要用在装卸搬运机械、高频马达、减速装置、前轮、破碎机、机床等的变速装置、矿山、饮料设备、工程船舶、伽玛等各大领域

 电话/微信:138-8949-5179

FAG NU314-E-TVP2轴承详细信息

NU314-E-TVP2轴承是【FAG轴承 > 圆柱滚子轴承】的型号,主要用在装卸搬运机械、高频马达、减速装置、前轮、破碎机、机床等的变速装置、矿山、饮料设备、工程船舶、伽玛等各大领域。

FAG NU314-E-TVP2轴承详细参数

参数备注
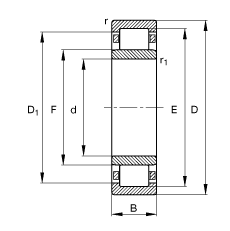
d70 mm
D150 mm
B35 mm
D1126,8 mm
Da max138 mm
da max87 mm
da min82 mm
db min92 mm
E133 mm
F89 mm
r1 min2,1 mm
ra max2,1 mm
ra1 max2,1 mm
rmin2,1 mm
s1,7 mm距离中心位置的轴向偏移
m2,79 kg质量
Cr242000 N基本额定动载荷,径向
C0r222000 N基本额定静载荷,径向
nG4500 1/min极限转速
nB4500 1/min参考速度
Cur30000 N疲劳极限载荷,径向

FAG NU314-E-TVP2轴承尺寸图纸

李工:138-8949-5179

刘工:135-0428-8802

地址:辽宁省大连经济技术开发区现代城3栋-13-13号

在线客服系统