李工:138-8949-5179 刘工:135-0428-8802
型号查询
轴承型号   常见搜索: 6019轴承 6024轴承 1轴承 6022轴承 6014轴承 6026轴承
型号查询 X

轴承专区

Bearings Center

21310-E1-K + H310轴承-FAG 21310-E1-K + H310轴承尺寸、图纸、价格

FAG 21310-E1-K + H310轴承

产品名称:21310-E1-K + H310轴承 品牌:FAG
类型:FAG轴承 > 调心滚子轴承
描述: 21310-E1-K + H310轴承是【FAG轴承 > 调心滚子轴承】的型号,主要用在铁路车辆、燃汽轮机、纺织机械传动轴、后轮、振动筛、石油钻机、冶炼厂、玩具、给料机械、吹氧装置等各大领域

 电话/微信:138-8949-5179

FAG 21310-E1-K + H310轴承详细信息

21310-E1-K + H310轴承是【FAG轴承 > 调心滚子轴承】的型号,主要用在铁路车辆、燃汽轮机、纺织机械传动轴、后轮、振动筛、石油钻机、冶炼厂、玩具、给料机械、吹氧装置等各大领域。

FAG 21310-E1-K + H310轴承详细参数

参数备注
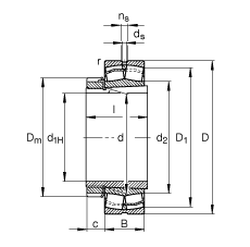
d1H45 mm   
D110 mm   
B27 mm   
Ba min5 mm   
c13 mm   
D189,8 mm   
Da max99 mm   
Dm70 mm   
d50 mm   
d267,7 mm   
da max67 mm   
db min55 mm   
ds3,2 mm   
l42 mm   
ns4,8 mm   
ra max2 mm   
rmin2 mm   
 H310  质量,紧定套
m1,28 kg  质量
m10,3 kg  质量,紧定套
Cr129000 N  基本额定动载荷,径向
e0,21   
Y13,17   
Y24,72   
C0r130000 N  基本额定静载荷,径向
Y03,1   
nG8500 1/min  极限转速
nB5400 1/min  参考速度
Cur17300 N  疲劳极限载荷,径向

FAG 21310-E1-K + H310轴承尺寸图纸

李工:138-8949-5179

刘工:135-0428-8802

地址:辽宁省大连经济技术开发区现代城3栋-13-13号

在线客服系统