李工:138-8949-5179 刘工:135-0428-8802
型号查询
轴承型号   常见搜索: 32313轴承 6009轴承 2025轴承 6028轴承 22222轴承 6016轴承
型号查询 X

轴承专区

Bearings Center

KWSE45-HL轴承-INA KWSE45-HL轴承尺寸、图纸、价格

INA KWSE45-HL轴承

产品名称:KWSE45-HL轴承 品牌:INA
类型:INA轴承 > 滑块
描述: KWSE45-HL轴承是【INA轴承 > 滑块】的型号,主要用在后轮、燃汽轮机、泵、后轮、木工机械、起重机吊钩、水力发电机、陶瓷机械、专用车、焊接机器人等各大领域

 电话/微信:138-8949-5179

INA KWSE45-HL轴承详细信息

KWSE45-HL轴承是【INA轴承 > 滑块】的型号,主要用在后轮、燃汽轮机、泵、后轮、木工机械、起重机吊钩、水力发电机、陶瓷机械、专用车、焊接机器人等各大领域。

INA KWSE45-HL轴承详细参数

参数备注
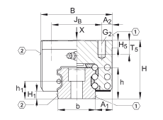
H70 mm
B86 mm
L172,3 mm用于密封润滑孔 N2 的最小覆盖长度
1)定位面
2)标记
A120,5 mm
A213 mm
A318,5 mm
aL max94 mma L 和 a R 取决于导轨的长度 l max
aL min20 mma L 和 a R 取决于导轨的长度 l max
aR max94 mma L 和 a R 取决于导轨的长度 l max
aR min20 mma L 和 a R 取决于导轨的长度 l max
b45 mm公差: -0,005 / -0,03
G2M10根据 DIN ISO 4762-12.9的螺钉最大锁紧力矩 [MA](Nm):M5 = 10M6 = 17M8 = 41M10 = 83M12 = 140
H18,6 mm
H59 mm
h37,2 mm
h119,2 mm
JB60 mm
JL80 mm
JL533,45 mm周围结构上润滑孔的位置。
jL105 mm
K1M12根据 DIN ISO 4762-12.9的螺钉最大锁紧力矩 [MA](Nm):M5 = 10M6 = 17M8 = 41M10 = 83M12 = 140M14 = 220M16 = 340
L1137,9 mm
lmax2940 mm单根导轨的最大长度;更长的导轨可以分成几段供货,并且相应地标注。根据合同约定,单根导轨最大长度可达到6米。
N26 mm周边结构润滑孔的最大直径。
O7x1,5 mmDIN 3771
T517 mm
mW3,7 kg滑块的质量
mS11,3 kg/m导轨的质量
CI98000 N载荷方向 I:压缩载荷
C0 I236000 N载荷方向 I:压缩载荷
CII79300 N载荷方向 II:拉伸载荷
C0 II159000 N载荷方向 II:拉伸载荷
CIII69000 N载荷方向 III:横向载荷
C0 III170000 N载荷方向 III:横向载荷
M0x3792 Nm绕 X 轴的额定静扭矩
M0y4011 Nm绕 Y 轴的额定静扭矩
M0z3654 Nm绕 Z 轴的额定静扭矩

INA KWSE45-HL轴承尺寸图纸

李工:138-8949-5179

刘工:135-0428-8802

地址:辽宁省大连经济技术开发区现代城3栋-13-13号

在线客服系统