轴承专区
Bearings Center
KUSE20-L轴承-INA KUSE20-L轴承尺寸、图纸、价格
INA KUSE20-L轴承
| 产品名称: | KUSE20-L轴承 | 品牌: | INA |
|---|---|---|---|
| 类型: | INA轴承 > 球单轨引导系统 | ||
| 描述: | KUSE20-L轴承是【INA轴承 > 球单轨引导系统】的型号,主要用在家用电器、小型汽车前轮、压缩机、差速器、造纸机械、耕耘机、塔吊、纺织、地基处理机械、冶金起重机等各大领域 | ||
电话/微信:138-8949-5179
INA KUSE20-L轴承详细信息
KUSE20-L轴承是【INA轴承 > 球单轨引导系统】的型号,主要用在家用电器、小型汽车前轮、压缩机、差速器、造纸机械、耕耘机、塔吊、纺织、地基处理机械、冶金起重机等各大领域。
INA KUSE20-L轴承详细参数
| 参数 | 值 | 备注 |
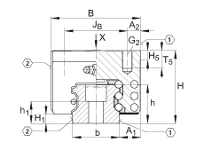
| H | 30 mm | |
| B | 63 mm | |
| L | 91,6 mm | 用于密封润滑孔 N2 的最小覆盖长度 |
| 1) | 定位面 | |
| 2) | 标记 | |
| A1 | 21,5 mm | |
| A2 | 5 mm | |
| A3 | 5,8 mm | |
| aL max | 53 mm | a L 和 a R 取决于导轨的长度 l max |
| aL min | 20 mm | a L 和 a R 取决于导轨的长度 l max |
| aR max | 53 mm | a L 和 a R 取决于导轨的长度 l max |
| aR min | 20 mm | a L 和 a R 取决于导轨的长度 l max |
| b | 20 mm | 公差: -0,005 / -0,03 |
| G2 | M6 | 根据 DIN ISO 4762-12.9的螺钉最大锁紧力矩 [MA](Nm):M6 = 10M8 = 24M10 = 41M12 = 83M14 = 140M16 = 220M20 = 470 |
| H1 | 4,6 mm | |
| H4 | 10,6 mm | |
| H5 | 5 mm | |
| h | 18 mm | |
| h1 | 9,8 mm | |
| JB | 53 mm | |
| JL | 40 mm | |
| JL5 | 19,85 mm | 周围结构上润滑孔的位置。 |
| JLZ | 35 mm | |
| jL | 60 mm | |
| K1 | M5 | 根据 DIN ISO 4762-12.9的螺钉最大锁紧力矩 [MA](Nm):M5 = 10M6 = 17M8 = 41M10 = 83M12 = 140M14 = 220M16 = 340 |
| K3 | M5 | 根据 DIN ISO 4762-12.9的螺钉最大锁紧力矩 [MA](Nm):M5 = 10M6 = 17M8 = 41M10 = 83M12 = 140M14 = 220M16 = 340 |
| K6 | M5 | 根据 DIN ISO 7984-8.8的螺钉最大锁紧力矩 [MA](Nm):M5 = 5.8M6 = 10M8 = 24M10 = 48M12 = 83M14 = 130 |
| L1 | 72,2 mm | |
| lmax | 1980 mm | 单根导轨的最大长度;更长的导轨可以分成几段供货,并且相应地标注。根据合同约定,单根导轨最大长度可达到6米。 |
| N2 | 3 mm | 周边结构润滑孔的最大直径。 |
| O | 3x1,5 mm | DIN 3771 |
| T5 | 10 mm | |
| T6 | 7,2 mm | 对于从上面安装:最大的中间螺纹孔的螺纹深度T6 + 3 mm |
| mW | 0,6 kg | 滑块的质量 |
| mS | 2,3 kg/m | 导轨的质量 |
| CI | 28000 N | 载荷方向 I:压缩载荷 |
| C0 I | 72000 N | 载荷方向 I:压缩载荷 |
| CII | 22200 N | 载荷方向 II:拉伸载荷 |
| C0 II | 46500 N | 载荷方向 II:拉伸载荷 |
| CIII | 18900 N | 载荷方向 III:横向载荷 |
| C0 III | 50000 N | 载荷方向 III:横向载荷 |
| M0x | 494 Nm | 绕 X 轴的额定静扭矩 |
| M0y | 619 Nm | 绕 Y 轴的额定静扭矩 |
| M0z | 564 Nm | 绕 Z 轴的额定静扭矩 |
INA KUSE20-L轴承尺寸图纸

