轴承专区
Bearings Center
GE30-AX轴承-INA GE30-AX轴承尺寸、图纸、价格
INA GE30-AX轴承
| 产品名称: | GE30-AX轴承 | 品牌: | INA |
|---|---|---|---|
| 类型: | INA轴承 > 推力关节轴承 | ||
| 描述: | GE30-AX轴承是【INA轴承 > 推力关节轴承】的型号,主要用在燃汽轮机、差速器小齿轮轴、桥式起重机、小齿轮轴、轧钢机齿轮箱座、机床等的变速装置、电机厂、塑料、工程船舶、数控设备等各大领域 | ||
电话/微信:138-8949-5179
INA GE30-AX轴承详细信息
GE30-AX轴承是【INA轴承 > 推力关节轴承】的型号,主要用在燃汽轮机、差速器小齿轮轴、桥式起重机、小齿轮轴、轧钢机齿轮箱座、机床等的变速装置、电机厂、塑料、工程船舶、数控设备等各大领域。
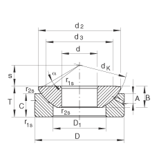
INA GE30-AX轴承详细参数
| 参数 | 值 | 备注 |
| d | 30 mm | 公差: 0 / -0,01 |
| D | 75 mm | 公差: 0 / -0,013 |
| T | 26 mm | 公差: 0 / -0,4 |
| A | 8 mm | |
| B | 18 mm | 公差: 0 / -0,24 |
| C | 19,5 mm | 公差: 0 / -0,24 |
| D1 | 44 mm | |
| Da min | 49 mm | |
| d3 | 56 mm | |
| da max | 56 mm | |
| dK | 80 mm | |
| r1s min | 1 mm | 倒角尺寸 |
| r2s min | 0,3 mm | 倒角尺寸 |
| s | 17,5 mm | |
| α | 6 ° | |
| m | 0,65 kg | 质量 |
| Ca | 169000 N | 基本额定动载荷,轴向 |
| C0a | 848000 N | 基本额定静载荷,轴向 |
INA GE30-AX轴承尺寸图纸

