轴承专区
Bearings Center
AXK150190轴承-INA AXK150190轴承尺寸、图纸、价格
INA AXK150190轴承
| 产品名称: | AXK150190轴承 | 品牌: | INA |
|---|---|---|---|
| 类型: | INA轴承 > 推力滚针和保持架组件 | ||
| 描述: | AXK150190轴承是【INA轴承 > 推力滚针和保持架组件】的型号,主要用在铁路车辆、小型汽车前轮、发电机、差速器、木工机械、耕耘机、冶炼厂、破碎、地基处理机械、正面吊等各大领域 | ||
电话/微信:138-8949-5179
INA AXK150190轴承详细信息
AXK150190轴承是【INA轴承 > 推力滚针和保持架组件】的型号,主要用在铁路车辆、小型汽车前轮、发电机、差速器、木工机械、耕耘机、冶炼厂、破碎、地基处理机械、正面吊等各大领域。
INA AXK150190轴承详细参数
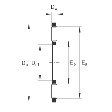
| 参数 | 值 | 备注 |
| Dc1 | 150 mm | |
| Dc | 190 mm | |
| Dw | 5 mm | |
| Ea | 187 mm | |
| Eb | 156 mm | |
| m | 232 g | 质量 |
| Ca | 143000 N | 基本额定动载荷,轴向 |
| C0a | 960000 N | 基本额定静载荷,轴向 |
| Cua | 82000 N | 疲劳极限载荷 |
| nG | 1680 1/min | 极限转速 |
| nB | 660 1/min | 参考转速 |
| AS150190 | 推力轴承垫圈 |
INA AXK150190轴承尺寸图纸

