李工:138-8949-5179 刘工:135-0428-8802
型号查询
轴承型号   常见搜索: 22222轴承 23136轴承 6014轴承 71913轴承 2026轴承 1轴承
型号查询 X

轴承专区

Bearings Center

NU248-E-M1轴承-FAG NU248-E-M1轴承尺寸、图纸、价格

FAG NU248-E-M1轴承

产品名称:NU248-E-M1轴承 品牌:FAG
类型:FAG轴承 > 圆柱滚子轴承
描述: NU248-E-M1轴承是【FAG轴承 > 圆柱滚子轴承】的型号,主要用在建筑机械、各类变速器、中型及大型电动机、铁路车辆、各类产业用减速机、机床等的变速装置、成形机、医药设备、工程船舶、港口起重机等各大领域

 电话/微信:138-8949-5179

FAG NU248-E-M1轴承详细信息

NU248-E-M1轴承是【FAG轴承 > 圆柱滚子轴承】的型号,主要用在建筑机械、各类变速器、中型及大型电动机、铁路车辆、各类产业用减速机、机床等的变速装置、成形机、医药设备、工程船舶、港口起重机等各大领域。

FAG NU248-E-M1轴承详细参数

参数备注
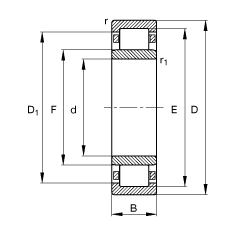
d240 mm
D440 mm
B72 mm
D1376,6 mm
Da max423 mm
da max290 mm
da min257 mm
db min296 mm
E393 mm
F293 mm
r1 min4 mm
ra max3 mm
ra1 max3 mm
rmin4 mm
s6 mm距离中心位置的轴向偏移
m51,8 kg质量
Cr1140000 N基本额定动载荷,径向
C0r1600000 N基本额定静载荷,径向
nG2600 1/min极限转速
nB1220 1/min参考速度
Cur132000 N疲劳极限载荷,径向

FAG NU248-E-M1轴承尺寸图纸

李工:138-8949-5179

刘工:135-0428-8802

地址:辽宁省大连经济技术开发区现代城3栋-13-13号

在线客服系统