轴承专区
Bearings Center
BND3184-Z-T-AL-S轴承-FAG BND3184-Z-T-AL-S轴承尺寸、图纸、价格
FAG BND3184-Z-T-AL-S轴承
| 产品名称: | BND3184-Z-T-AL-S轴承 | 品牌: | FAG |
|---|---|---|---|
| 类型: | FAG轴承 > 直立式轴承座 | ||
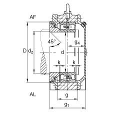
| 描述: | BND3184-Z-T-AL-S轴承是【FAG轴承 > 直立式轴承座】的型号,主要用在变速器、差速器小齿轮轴、纺织机械传动轴、小齿轮轴、轧钢机齿轮箱座、机床等的变速装置、立式电动机、电子、工程船舶、吹氧装置等各大领域 | ||
电话/微信:138-8949-5179
FAG BND3184-Z-T-AL-S轴承详细信息
BND3184-Z-T-AL-S轴承是【FAG轴承 > 直立式轴承座】的型号,主要用在变速器、差速器小齿轮轴、纺织机械传动轴、小齿轮轴、轧钢机齿轮箱座、机床等的变速装置、立式电动机、电子、工程船舶、吹氧装置等各大领域。
FAG BND3184-Z-T-AL-S轴承详细参数
| 参数 | 值 | 备注 |
| a | 1350 mm | |
| h1 | 900 mm | |
| g1 | 440 mm | |
| b | 420 mm | |
| c | 135 mm | |
| D | 700 mm | |
| d | 420 mm | |
| dz | 444 mm | |
| g | 260 mm | |
| g4 | 215 mm | |
| h | 450 mm | |
| k | 7 mm | |
| m | 1100 mm | |
| n | 210 mm | |
| s | M56 mm | |
| s2 | M30 mm | |
| t | 760 mm | |
| u | 64 mm | |
| v | 85 mm | |
| s2 | 8 | 数量 |
| 23184-MB | 型号,轴承 | |
| m1 | 950 kg | 质量,轴承座 |
| BND | 型号,轴承座系列 |
FAG BND3184-Z-T-AL-S轴承尺寸图纸

