轴承专区
Bearings Center
BND3140-Z-T-AL-S轴承-FAG BND3140-Z-T-AL-S轴承尺寸、图纸、价格
FAG BND3140-Z-T-AL-S轴承
| 产品名称: | BND3140-Z-T-AL-S轴承 | 品牌: | FAG |
|---|---|---|---|
| 类型: | FAG轴承 > 直立式轴承座 | ||
| 描述: | BND3140-Z-T-AL-S轴承是【FAG轴承 > 直立式轴承座】的型号,主要用在通用电动机、差速器小齿轮轴、提升机、小齿轮轴、各类产业用减速机、机床等的变速装置、轧钢机轧制螺杆用减速机、医药设备、压路机、刮泥机等各大领域 | ||
电话/微信:138-8949-5179
FAG BND3140-Z-T-AL-S轴承详细信息
BND3140-Z-T-AL-S轴承是【FAG轴承 > 直立式轴承座】的型号,主要用在通用电动机、差速器小齿轮轴、提升机、小齿轮轴、各类产业用减速机、机床等的变速装置、轧钢机轧制螺杆用减速机、医药设备、压路机、刮泥机等各大领域。
FAG BND3140-Z-T-AL-S轴承详细参数
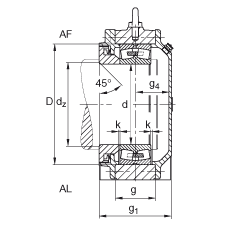
| 参数 | 值 | 备注 |
| a | 710 mm | |
| h1 | 455 mm | |
| g1 | 242 mm | |
| b | 220 mm | |
| c | 85 mm | |
| D | 340 mm | |
| d | 200 mm | |
| dz | 212 mm | |
| g | 135 mm | |
| g4 | 108 mm | |
| h | 220 mm | |
| k | 3 mm | |
| m | 560 mm | |
| n | 120 mm | |
| s | M36 mm | |
| s2 | M16 mm | |
| t | 380 mm | |
| u | 42 mm | |
| v | 52 mm | |
| s2 | 8 | 数量 |
| 23140-B-MB | 型号,轴承 | |
| m1 | 170 kg | 质量,轴承座 |
| BND | 型号,轴承座系列 |
FAG BND3140-Z-T-AL-S轴承尺寸图纸

