轴承专区
Bearings Center
BND2284-Z-Y-BF-S轴承-FAG BND2284-Z-Y-BF-S轴承尺寸、图纸、价格
FAG BND2284-Z-Y-BF-S轴承
| 产品名称: | BND2284-Z-Y-BF-S轴承 | 品牌: | FAG |
|---|---|---|---|
| 类型: | FAG轴承 > 直立式轴承座 | ||
| 描述: | BND2284-Z-Y-BF-S轴承是【FAG轴承 > 直立式轴承座】的型号,主要用在电气装置部件、燃料喷射泵、提升机、齿轮减速装置、轧钢机辊道子、石油钻机、船舶用螺旋桨轴、饮料设备、给料机械、伽玛等各大领域 | ||
电话/微信:138-8949-5179
FAG BND2284-Z-Y-BF-S轴承详细信息
BND2284-Z-Y-BF-S轴承是【FAG轴承 > 直立式轴承座】的型号,主要用在电气装置部件、燃料喷射泵、提升机、齿轮减速装置、轧钢机辊道子、石油钻机、船舶用螺旋桨轴、饮料设备、给料机械、伽玛等各大领域。
FAG BND2284-Z-Y-BF-S轴承详细参数
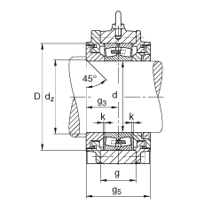
| 参数 | 值 | 备注 |
| a | 1500 mm | |
| h1 | 950 mm | |
| b | 470 mm | |
| c | 150 mm | |
| D | 760 mm | |
| d | 420 mm | |
| dz | 450 mm | |
| g | 238 mm | |
| g3 | 216,5 mm | |
| g5 | 433 mm | |
| h | 470 mm | |
| m | 1220 mm | |
| n | 255 mm | |
| s | M64 mm | |
| s2 | M30 mm | |
| t | 835 mm | |
| u | 72 mm | |
| v | 90 mm | |
| s2 | 8 | 数量 |
| 22284-MB | 型号,轴承 | |
| m1 | 1060 kg | 质量,轴承座 |
| BND | 型号,轴承座系列 |
FAG BND2284-Z-Y-BF-S轴承尺寸图纸

