轴承专区
Bearings Center
BND2260-Z-T-AL-S轴承-FAG BND2260-Z-T-AL-S轴承尺寸、图纸、价格
FAG BND2260-Z-T-AL-S轴承
| 产品名称: | BND2260-Z-T-AL-S轴承 | 品牌: | FAG |
|---|---|---|---|
| 类型: | FAG轴承 > 直立式轴承座 | ||
| 描述: | BND2260-Z-T-AL-S轴承是【FAG轴承 > 直立式轴承座】的型号,主要用在建筑机械、差速器小齿轮轴、燃汽轮机、小齿轮轴、破碎机、机床等的变速装置、成形机、精细化工机械、压路机、焊接机器人等各大领域 | ||
电话/微信:138-8949-5179
FAG BND2260-Z-T-AL-S轴承详细信息
BND2260-Z-T-AL-S轴承是【FAG轴承 > 直立式轴承座】的型号,主要用在建筑机械、差速器小齿轮轴、燃汽轮机、小齿轮轴、破碎机、机床等的变速装置、成形机、精细化工机械、压路机、焊接机器人等各大领域。
FAG BND2260-Z-T-AL-S轴承详细参数
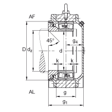
| 参数 | 值 | 备注 |
| a | 1100 mm | |
| h1 | 695 mm | |
| g1 | 317 mm | |
| b | 330 mm | |
| c | 105 mm | |
| D | 540 mm | |
| d | 300 mm | |
| dz | 320 mm | |
| g | 178 mm | |
| g4 | 149 mm | |
| h | 350 mm | |
| k | 4 mm | |
| m | 920 mm | |
| n | 180 mm | |
| s | M48 mm | |
| s2 | M24 mm | |
| t | 600 mm | |
| u | 56 mm | |
| v | 75 mm | |
| s2 | 8 | 数量 |
| 22260-MB | 型号,轴承 | |
| m1 | 485 kg | 质量,轴承座 |
| BND | 型号,轴承座系列 |
FAG BND2260-Z-T-AL-S轴承尺寸图纸

