李工:138-8949-5179 刘工:135-0428-8802
型号查询
轴承型号   常见搜索: 6006轴承 6002轴承 6024轴承 6005轴承 6003轴承 *轴承
型号查询 X

轴承专区

Bearings Center

BND2252-Z-T-AL-S轴承-FAG BND2252-Z-T-AL-S轴承尺寸、图纸、价格

FAG BND2252-Z-T-AL-S轴承

产品名称:BND2252-Z-T-AL-S轴承 品牌:FAG
类型:FAG轴承 > 直立式轴承座
描述: BND2252-Z-T-AL-S轴承是【FAG轴承 > 直立式轴承座】的型号,主要用在变速器、差速器小齿轮轴、泵、小齿轮轴、印刷机械、机床等的变速装置、立式电动机、薄膜拉伸、压路机、吹氧装置等各大领域

 电话/微信:138-8949-5179

FAG BND2252-Z-T-AL-S轴承详细信息

BND2252-Z-T-AL-S轴承是【FAG轴承 > 直立式轴承座】的型号,主要用在变速器、差速器小齿轮轴、泵、小齿轮轴、印刷机械、机床等的变速装置、立式电动机、薄膜拉伸、压路机、吹氧装置等各大领域。

FAG BND2252-Z-T-AL-S轴承详细参数

参数备注
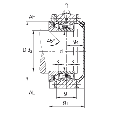
a960 mm
h1625 mm
g1286 mm
b290 mm
c95 mm
D480 mm
d260 mm
dz280 mm
g161 mm
g4126 mm
h310 mm
k3 mm
m800 mm
n160 mm
sM36 mm
s2M20 mm
t535 mm
u42 mm
v52 mm
s28数量
22252-B-MB型号,轴承
m1370 kg质量,轴承座
BND型号,轴承座系列

FAG BND2252-Z-T-AL-S轴承尺寸图纸

李工:138-8949-5179

刘工:135-0428-8802

地址:辽宁省大连经济技术开发区现代城3栋-13-13号

在线客服系统