李工:138-8949-5179 刘工:135-0428-8802
型号查询
轴承型号   常见搜索: 6011轴承 6018轴承 *轴承 6015轴承 6003轴承 23136轴承
型号查询 X

轴承专区

Bearings Center

23236-E1A-K-M + H2336轴承-FAG 23236-E1A-K-M + H2336轴承尺寸、图纸、价格

FAG 23236-E1A-K-M + H2336轴承

产品名称:23236-E1A-K-M + H2336轴承 品牌:FAG
类型:FAG轴承 > 调心滚子轴承
描述: 23236-E1A-K-M + H2336轴承是【FAG轴承 > 调心滚子轴承】的型号,主要用在内燃机、油泵、发电机、机床主轴、造纸机械、起重机吊钩、挤压机、陶瓷机械、专用车、抓钢机等各大领域

 电话/微信:138-8949-5179

FAG 23236-E1A-K-M + H2336轴承详细信息

23236-E1A-K-M + H2336轴承是【FAG轴承 > 调心滚子轴承】的型号,主要用在内燃机、油泵、发电机、机床主轴、造纸机械、起重机吊钩、挤压机、陶瓷机械、专用车、抓钢机等各大领域。

FAG 23236-E1A-K-M + H2336轴承详细参数

参数备注
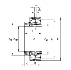
d1H160 mm
D320 mm
B112 mm
Ba min0 mm
c30 mm
D1277,3 mm
Da max303 mm
Dm230 mm
d180 mm
da max0 mm
db min0 mm
ds8 mm
l161 mm
ns15 mm
ra max3 mm
rmin4 mm
H2336质量,紧定套
m37 kg质量
m111,6 kg质量,紧定套
Cr1710000 N基本额定动载荷,径向
e0,33
Y12,07
Y23,09
C0r2340000 N基本额定静载荷,径向
Y02,03
nG2000 1/min极限转速
nB1090 1/min参考速度
Cur173000 N疲劳极限载荷,径向

FAG 23236-E1A-K-M + H2336轴承尺寸图纸

李工:138-8949-5179

刘工:135-0428-8802

地址:辽宁省大连经济技术开发区现代城3栋-13-13号

在线客服系统